是谁?把振动台带到我们身边
原文:R. T. Severn, The development of shaking tables–A historical note, Earthquake Engng Struct. Dyn. 2011; 40:195-213. 廖文杰翻译和整理。
科学研究是减轻地震灾害的重要手段。由于真实的强烈地震出现的几率很小且难以预测,所以我们需要一个实验装置在实验室里模拟真实地震。这样的实验仪器就是振动台。振动台是现阶段地震工程研究最重要的仪器之一。它是一个可以按照事先设定的规律晃动的装置,用来模拟地震引起的地面运动。将不同的建筑或桥梁模型置于振动台上,就可以研究其在地震下的各种力学特性。

日本E-Defence振动台实验动画
那么问题来了,请问第一台振动台是谁创造出来的呢?
A. Milne 和 大森房吉;
B. Rogers;
C. Jacobsen;
D. Clough 和 Pirtz;
E. Ruge
当然答案总是需要自己探寻的。那么就开始讲讲振动台的创造和改进历史吧。
1. 简单正弦运动的振动台
第一次在实验室尝试地震对结构的影响是在1890年的日本,由一位英国人,John Milne,以及他日本同事Fusakichi Omori(大森房吉)完成。实验装置见图1,试件在振动台上,振动台在轨道上,同时振动台通过一根钢筋和一个车轮偏心连接,车轮人力驱动,振动台的运动由一个在旋转筒上的笔记录。
(看到这儿,就可以知道第一个振动台的发明者了吧。但是呢,后面那几位的团队对振动台的发展做出了巨大的贡献,详见下文)

图1. John Milne & Fusakichi Omori的轨道振动台(c.1890s)
到了1906年,斯坦福大学物理系的助理教授F. J. Rogers制造出一个更加精细的由电机驱动的装置,见图2。盒子的运动基本是正弦运动,频率变化在0.5-4.6Hz之间,最大水平位移量10cm,这个水平位移量是可以通过曲柄与轮毂的偏心度调节的。

图2.由F. J. Rogers设计用于测试湿的和干的沙子行为的振动台
2 使用弹簧和摆锤激励的振动台
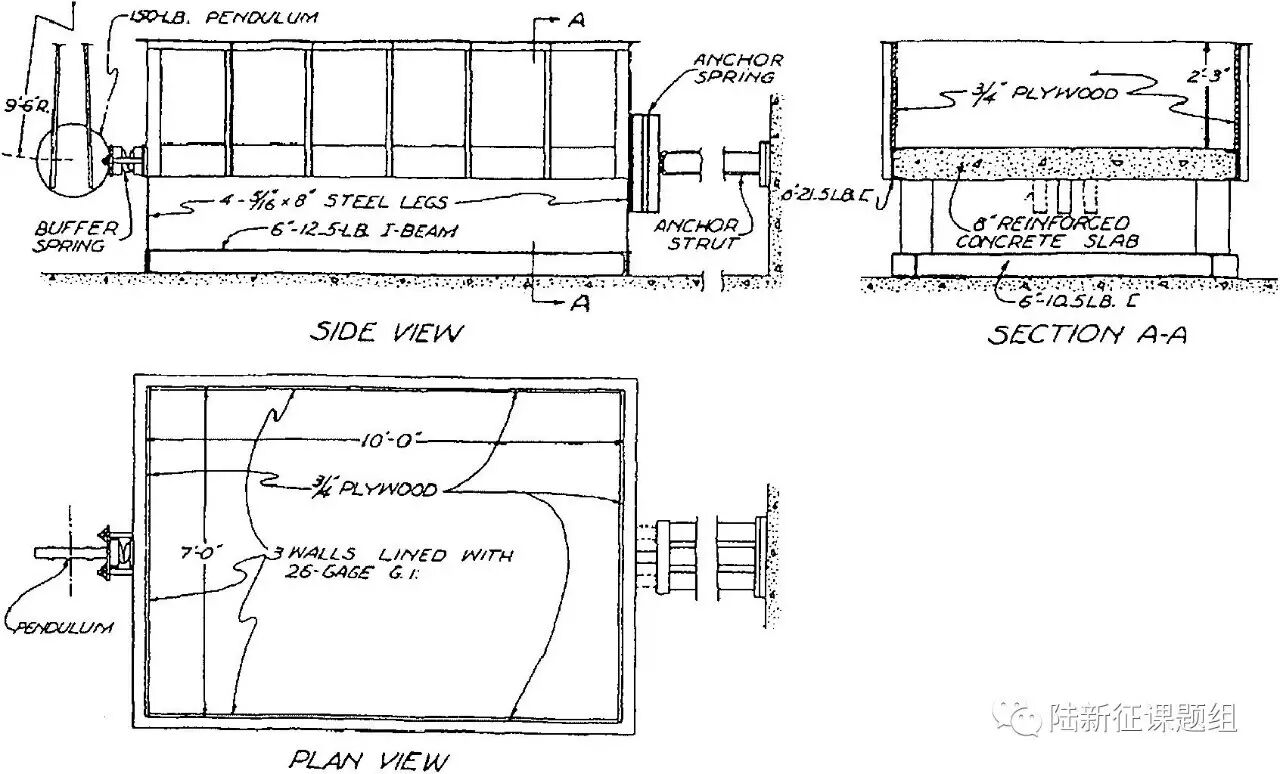
纵览地震工程的历史,研究的兴趣和资金总是需要大的地震事件来刺激。当然,在1925年的美国Santa Barbara地震和1923年的日本关东地震之后,研究的需求和经费就都有了。关东地震摧毁了东京市的很大一部分,这再次引起了斯坦福大学的注意,因此学校打算建造一个振动台,这个任务就交给了Jacobsen博士和他的同事。Jacobsen博士提出了两种不同的振动台装置。图3所示为一个摆锤发出一个单一的冲击,冲击通过一个和车子连接的缓冲弹簧传递,在车子的尾部有一组弹簧用于抵抗冲击,一个最初的冲击之后就是运动的衰减,如图4上部曲线。另外一种振动台的驱动,由不平衡的飞轮连在振动台上,产生简谐运动,见图4下面曲线。飞轮详见图5,有四个对称的重量还有一个单独的偏心盒子。一个非常有创意的想法是可以通过对偏心盒子质量的增加或者减少来控制频率和振幅。

图3. Jacobsen的振动台使用摆锤输入机制研究水箱中水质量增加对振动产生的影响

图4. Jacobsen的振动台在两种输入下的理论曲线;上面和下面的曲线分别由摆锤和不平衡的飞轮产生

图5. Jacobsen振动台的不平衡飞轮输入机制
Jacobsen用了超过25年的时间改进其振动台和记录装置,但是依旧没有办法测量出速度和加速度。另外Jacobsen的论文非常重要的一个特点是他的论文中附上了振动台实验出现问题的数学分析,他强烈认为实验需要理论分析的指导。
随后全世界很多的工程师模仿Jacobsen的振动台设计。1936年日本做了一个偏心振动器激励的振动台,用于1:100大坝模型的测试。1956年,意大利ISMES研究所制造了一台10×15ft(3×4.5m)的振动台,其激励方式有三种,一是使用摆锤和弹簧,二是使用偏心装置产生水平或者竖直的运动,三是使用四个电动驱动装置产生简谐运动。
早在20世纪50年代,加州大学伯克利分校就在Clough和Pirtz的鼓动下建造了7×10ft的振动台,目的在于研究堆石坝,见图6。此时由于二战带来的技术进步,加速度传感器和线性差动变压器(LVDT)可用于测量加速度和位移。

图6. Jacobsen类型的振动台,Clough和Pirtz用于测试堆石大坝
值得一提的是1958年日本研制了一个振动台,将摆锤由预先加载好的一排弹簧机构取代,随后逐渐释放弹簧用于模拟阻尼振动(图7)。

图7. 日本的弹簧加载振动台(1958)正在测试石墨芯模型
3 液压作动器激励—现代振动台诞生
3.1 A. C. Ruge的创新
1933年美国长滩地震导致水塔的倒塌,这给了当时MIT地震研究助理A. C. Ruge一个建造悬吊振动台的机会,振动台上部由钢琴线吊住,为了防止旋转,由一组和地板相连的线连接。不同于弹簧、摆锤、偏心飞轮,Ruge使用的是油压驱动的活塞与振动台相连(图8)。

图8. Ruge创新振动台的原理示意图
3.2 Jassy水支撑的振动台(罗马尼亚)
二战及其余波造成了振动台发展的中断,但是也带来了好消息:军用液压系统的快速发展,尤其是在伺服操纵器上的发展,很快就用到了振动台上。第一次使用是在罗马尼亚的Jassy建筑研究所,早在20世纪60年代两个电液伺服器就能使10×10m的振动台产生0.4g加速度。见图9.

图9. Jassy(罗马尼亚)的振动台
3.3 伊利诺伊大学香槟分校的单轴振动台
1967年在伊利诺伊大学香槟分校,洛杉矶的Ormond公司建造了一个单轴的振动台。这个振动台第一个非常重要的不同点在于控制系统使用的是电液伺服阀控制。第二个重要的不同是操作系统为Herb Johnson新做的MTS操作系统,这使得振动台的输入有三种形式:静态运动、真实或者模拟的地震运动、任意的波形运动。位移、速度、加速度都可以进行时程输入。图10展示了振动台的位移量、速度、加速度最大值,分别为2in,15in/s,7g。

图10. (a) 伊利诺伊大学振动台侧视图 (b)伊利诺伊振动台的运行特征(加速度位于右对角线,位移为左对角线)
3.4 Penzien和Rea的振动台
1965年加州大学伯克利分校的研究团队Penzien和Rea开始研究100×100ft(30.48×30.48m)的振动台可行性,它将拥有52个液压驱动器,每个水平方向20个,还有12个在竖直方向。预计花费1955万美元,每使用一次花费300万美元。但在1965年这项技术太难实现了,最终100×100ft的振动台没有完成。但是20×20ft的振动台在加州大学伯克利分校建成(见图11)。主要由Penzien和Rea以及MTS公司共同完成。

图11 UCB20×20ft振动台的主要特征图解
加州大学伯克利分校振动台的输入是加速度时程,在实验之前需要对加速度积分求得速度和位移,用于判别是否超过振动台限值。加州大学伯克利分校振动台拥有相对最大速度25 in/s(0.635 m/s),最大位移量5 in以及最大加速度1.5g。
3.5. 日本大型振动台的发展,1970-1986
到1970年代,日本同世界其他地方一样,由于电子和计算机的技术进步产生了电液伺服作动器。在大学、研究所、许多小型、中型振动台都使用这种电液伺服作动器。这一时期日本最大振动台为国家防灾中心(National Centre for Disaster Prevention)在筑波市(Tsukuba Science City)建造的15×15m的振动台(图12)。它水平振动能承载500吨的试件,竖直振动能承载200吨的试件。频率范围在0.1-50Hz,最大位移、速度、加速度为60mm、30cm/s,以及0.55g的水平加速度和1g的竖直加速度。该振动台马上被用于研究1964年日本新泻地震中大量出现的沙土液化问题。此后,1982年日本Nuclear Power Engineering Corporation投资2亿美元,建成了最大加载能力为1000吨的15×15m振动台。这个振动台每月的运行费用就要1百万美元。

图12.1970年由三菱重工建造的15×15m的振动台部件图解
4. 6自由度控制的发展
20世纪50年代中期,由于欧洲核电站的建造,欧洲振动台亦开始建造。第一次出现是在联邦德国的Julich(图13)。Julich振动台可以控制6个自由度,但是仍旧有局限,比如要求试件在测试期间性能不发生改变,比如被任何非线性行为改变。

图13.德国Julich 6轴SAMSON振动台
由于政治原因,德国政府放弃了核能,Julich振动台也无用武之地,一些年后被拆除了。但是其他国家陆续开始建造了多个振动台,比如英国Bristol大学依照同样的原理建造了一个振动台。以及在意大利ISMES研究所1984年开始使用一个4×4m,6自由度的振动台,在1986年又增加了一个4×2.5m的单自由度振动台,同时希腊Technical University of Athens一个4×4m的振动台开始运行。毫无疑问,最重要的欧洲振动台位于Saclay的法国原子能委员会(CEA)。它拥有4个振动台,分别为 3.1×3.8m(单自由度),2×2m(单自由度),2×2m(双自由度),6×6m(6自由度)振动台。
相关文章
长按识别二维码,关注我们的科研动态
