0
引言
目前AI-structure Copilot已经可以兼容AutoCAD和中望CAD。随着设计行业对BIM和多专业配合设计的需求增加,我们最新开发了AI-structure Copilot和Revit的接口。用户可以直接在Revit环境中调用AI-structure Copilot完成智能设计任务(目前支持剪力墙结构设计)。欢迎各位用户广泛试用!
操作演示视频
1
AI-structure Copilot接入Revit的插件
AI-structure Copilot 接入Revit的插件下载地址为:
https://ai-structure.com/#/IntelligentDesign
下载并安装上述程序后,Revit的菜单栏中会增加“HEMU AIstructure”选项,如图1所示。“HEMU AIstructure“菜单栏中包括登录、登出、注册、参数设置、剪力墙智能设计、结构建模分析等功能选项,具体设计流程与AutoCAD中操作流程类似,用户登录后首先进行参数设置,然后即可顺序执行智能设计和结构分析。

图1 Revit中的HEMU AIstructure菜单栏
2
Revit中AI-structure Copilot的智能设计效果
对Revit绘制的建筑设计(如图2所示)开展结构智能设计,耗时3分钟,智能设计结果如图3所示。可以看出,AI-structure Copilot可以很好的识别出Revit图纸中的构件和建筑空间等信息,完成智能设计并将设计结果返回到Revit软件中,同时可以在Revit中更好的进行三维展示,便于工程师开展后期的相关工作。

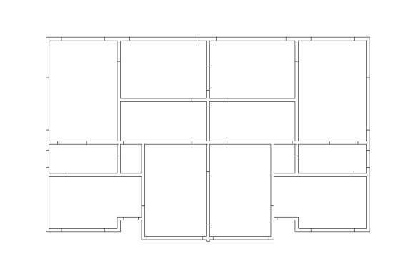
图2 Revit绘制的建筑平面图

(a)平面图

(b)三维图
图3 结构智能设计结果
3
结语
AI-structure Copilot实现了AutoCAD、中望CAD、Revit等多平台的兼容,为用户提供更加多样化的选择。欢迎大家试用,并多多提供意见和建议。
后续,我们还将不断完善相关产品功能。欢迎大家持续关注我们的工作,多多支持!

温馨提示:为更好使用AI设计工具,请仔细阅读使用说明书(https://ai-structure.com)。
QQ群
AI-structure-交流1群:741840451(已满)
AI-structure-交流2群:1053974604(欢迎加入)
商务问题请联系:
黄盛楠([email protected])
技术问题请联系:
廖文杰([email protected])
AI-structure Copilot兼容中望CAD(20251120)
3500个实际工程!AI-structure Copilot加速进步(20251027)
手把手教你使用AIstructure-Copilot-V0.4.0的新功能:(2) 剪力墙结构智能设计与优化(20250913)
手把手教你使用AIstructure-Copilot-V0.4.0的新功能:(1) 基于智能识图的CAD图纸前处理(20250912)
AIstructure-Copilot-V0.3.9:框架和框架-核心筒智能设计模块增加一键导出PKPM/YJK模型功能(20250828)
AIstructure-Copilot-V0.3.7:框架结构智能设计新增半框梁和次梁智能设计功能,软件用户界面设计更新(20250703)
2500→3000!AIstructure用户设计项目数突破3000个(20250609)
AIstructure-Copilot-V0.3.6:新增框架结构智能设计功能(20250606)
AIstructure用户设计项目数突破2500个!(20250314)
论文:生成式智能结构设计在建筑投标中的应用案例(20250218)
大家一起玩AI | AIstructure-API开放生态秀:基准方中参数化工具TigerKin实现智能生成设计(20250212)
AI-structure.com 2024年终总结(20241228)
0→2000!AIstructure用户设计项目突破2000个(2024/12/02)
独AI不如众AI,AIstructure二次开发接口API开放试用!(20241104)
AIstructure-Copilot V0.3.0 增加图层自动提取功能,墙梁联合优化改进设计效果(20241018)
AIstructure官网全面升级,英文版上线(20240909)
AIstructure-Copilot-V0.2.9 梁布置设计算法改进(20240830)
AIstructure-Copilot-v0.2.8软件全过程操作演示视频(20240809)
AIstructure-Copilot-V0.2.8软件使用温馨小贴士(20240726)
结构生成式智能设计AI-structure 2024上半年小结(20240628)
AIstructure-Copilot-v0.2.7技术背景(1):基于PKPM API的自动化建模和计算分析(20240522)
AIstructure-Copilot-v0.2.7:新增后处理功能,云端完成PKPM结构计算和AIstructure优化(20240520)
AIstructure-Copilot-v0.2.6:给马儿换上精饲料,AIstructure设计效果持续改善(20240511)
AIstructure-Copilot-v0.2.2:梁布置设计功能更新(20240308)
AIstructure-Copilot-v0.1.7功能更新:实现多标准层的PKPM/YJK自动建模(20231222)
AIstructure-Copilot实现“三驾马车”驱动:Diffusion Model智能设计上线!(20231103)
AIstructure-Copilot-v0.1.2更新:精细化考虑抗震设计条件影响的全新GNN版本,请您来试试(20230928)
ai-structure.com:剪力墙结构材料用量AI预测模块上线测试(20230731)
AIstructure-Copilot:嵌入CAD平台的结构智能设计助手(20230711)
建筑结构生成式智能设计在日内瓦国际发明展上获“评审团特别嘉许金奖”(20230519)
ai-structure.com:土木工程自然语言规则AI解译模块上线测试(20230513)
AI剪力墙设计问卷调查结果(20230508)
相关论文
Liao WJ, Lu XZ, Huang YL, Zheng Z, Lin YQ, Automated structural design of shear wall residential buildings using generative adversarial networks, Automation in Construction, 2021, 132: 103931. DOI: 10.1016/j.autcon.2021.103931.
Lu XZ, Liao WJ, Zhang Y, Huang YL, Intelligent structural design of shear wall residence using physics-enhanced generative adversarial networks, Earthquake Engineering & Structural Dynamics, 2022, 51(7): 1657-1676. DOI: 10.1002/eqe.3632.
Zhao PJ, Liao WJ, Xue HJ, Lu XZ, Intelligent design method for beam and slab of shear wall structure based on deep learning, Journal of Building Engineering, 2022, 57: 104838. DOI: 10.1016/j.jobe.2022.104838.
Liao WJ, Huang YL, Zheng Z, Lu XZ, Intelligent generative structural design method for shear-wall building based on “fused-text-image-to-image” generative adversarial networks, Expert Systems with Applications, 2022, 118530, DOI: 10.1016/j.eswa.2022.118530.
Fei YF, Liao WJ, Zhang S, Yin PF, Han B, Zhao PJ, Chen XY, Lu XZ, Integrated schematic design method for shear wall structures: a practical application of generative adversarial networks, Buildings, 2022, 12(9): 1295. DOI: 10.3390/buildings1209129.
Fei YF, Liao WJ, Huang YL, Lu XZ, Knowledge-enhanced generative adversarial networks for schematic design of framed tube structures, Automation in Construction, 2022, 144: 104619. DOI: 10.1016/j.autcon.2022.104619.
Zhao PJ, Liao WJ, Huang YL, Lu XZ, Intelligent design of shear wall layout based on attention-enhanced generative adversarial network, Engineering Structures, 2023, 274: 115170. DOI: 10.1016/j.engstruct.2022.115170.
Zhao PJ, Liao WJ, Huang YL, Lu XZ, Intelligent beam layout design for frame structure based on graph neural networks, Journal of Building Engineering, 2023, 63, Part A: 105499. DOI: 10.1016/j.jobe.2022.105499.
Zhao PJ, Liao WJ, Huang YL, Lu XZ, Intelligent design of shear wall layout based on graph neural networks, Advanced Engineering Informatics, 2023, 55:101886, DOI: 10.1016/j.aei.2023.101886
Liao WJ, Wang XY, Fei YF, Huang YL, Xie LL, Lu XZ, Base-isolation design of shear wall structures using physics-rule-co-guided self-supervised generative adversarial networks, Earthquake Engineering & Structural Dynamics, 2023, 52(11): 3281-3303. DOI:10.1002/eqe.3862.
Feng YT, Fei YF, Lin YQ, Liao WJ, Lu XZ, Intelligent generative design for shear wall cross-sectional size using rule-embedded generative adversarial network, Journal of Structural Engineering-ASCE, 2023, 149(11). 04023161. DOI:10.1061/JSENDH.STENG-12206.
Fei YF, Liao WJ, Lu XZ, Guan H, Knowledge-enhanced graph neural networks for construction material quantity estimation of reinforced concrete buildings, Computer-Aided Civil and Infrastructure Engineering, 2024, 39(4): 518-538. DOI: 10.1111/mice.13094.
Zhao PJ, Fei YF, Huang YL, Feng YT, Liao WJ, Lu XZ, Design-condition-informed shear wall layout design based on graph neural networks, Advanced Engineering Informatics, 2023, 58: 102190. DOI: 10.1016/j.aei.2023.102190.
Fei YF, Liao WJ, Lu XZ, Taciroglu E, Guan H, Semi-supervised learning method incorporating structural optimization for shear-wall structure design using small and long-tailed datasets, Journal of Building Engineering, 2023, 79: 107873. DOI:10.1016/j.jobe.2023.107873
Liao WJ, Lu XZ, Fei YF, Gu Y, Huang YL, Generative AI design for building structures, Automation in Construction, 2024, 157: 105187. DOI: 10.1016/j.autcon.2023.105187
Zhao PJ, Liao WJ, Huang YL, Lu XZ, Beam layout design of shear wall structures based on graph neural networks, Automation in Construction, 2024, 158: 105223. DOI: 10.1016/j.autcon.2023.105223
Qin SZ, Liao WJ, Huang SN, Hu KG, Tan Z, Gao Y, Lu XZ, AIstructure-Copilot: assistant for generative AI-driven intelligent design of building structures, Smart Construction, 2024, DOI: 10.55092/sc20240001
Gu Y, Huang YL, Liao WJ, Lu XZ, Intelligent design of shear wall layout based on diffusion models, Computer-Aided Civil and Infrastructure Engineering, 2024, 39(23):3610-3625. DOI: 10.1111/mice.13236
Fei YF, Liao WJ, Zhao PJ, Lu X*, Guan H, Hybrid surrogate model combining physics and data for seismic drift estimation of shear-wall structures, Earthquake Engineering & Structural Dynamics, 2024, 53(10): 3093-3112. DOI: 10.1002/eqe.4151
Han J, Lu XZ, Gu Y, Cai Q, Xue HJ, Liao WJ, Optimized data representation and understanding method for the intelligent design of shear wall structures, Engineering Structures, 2024, 315: 118500. DOI: 10.1016/j.engstruct.2024.118500
Qin SZ, Guan H, Liao WJ, Gu Y, Zheng Z, Xue HJ, Lu XZ, Intelligent design and optimization system for shear wall structures based on large language models and generative artificial intelligence, Journal of Building Engineering, 2024, 95: 109996. DOI: 10.1016/j.jobe.2024.109996
Wang ZH, Yue Y, Chen Y, Liao WJ, Li CS, Hu KG, Tan Z, Lu XZ. Expert experience-embedded evaluation and decision-making method for intelligent design of shear wall structures. Journal of Computing in Civil Engineering-ASCE, 2025, 39(1). DOI: 10.1061/JCCEE5.CPENG-6076
Tan Z, Qin SZ, Hu KG, Liao WJ, Gao Y, Lu XZ, Intelligent generation and optimization method for the retrofit design of RC frame structures using buckling-restrained braces, Earthquake Engineering & Structural Dynamics, 2025, 54(2): 530-547. DOI: 10.1002/eqe.4268
Yu Y, Chen Y, Liao WJ, Wang ZH, Zhang SL, Kang YJ, Lu XZ, Intelligent generation and interpretability analysis of shear wall structure design by learning from multidimensional to high-dimensional features, Engineering Structures, 2025, 325: 119472. DOI: 10.1016/j.engstruct.2024.119472
Qin SZ, Liao WJ, Huang YL, Zhang Shulu, Gu Y, Han J, Lu XZ, Intelligent design for component size generation in reinforced concrete frame structures using heterogeneous graph neural networks, Automation in Construction, 2025, 171: 105967.
Xia JK, Liao WJ, Han B, Zhang SL, Lu XZ, Intelligent co-design of shear wall and beam layouts using a graph neural network, Automation in Construction, 2025, 172: 106024.
Qin SZ, Liao WJ, Tan Z, Hu KG, Gao Y, Lu XZ, Comparative analysis of intelligent retrofit design methods of RC frame structures using buckling-restrained braces. Bulletin of Earthquake Engineering, 2025, DOI: 10.1007/s10518-025-02164-3
Liao WJ, Zhang ZL, Liu B, Lu XZ, Liu DF, Liu Q, Duan ZJ, Liu C, Intelligent zoning design of concrete-faced rockfill dams using image-parameter fusion enhanced generative adversarial networks, Engineering Structures, 2025, 339: 120662. DOI: 10.1016/j.engstruct.2025.120662
Qin SZ, Fei YF, Liao WJ, Lu XZ*, Leveraging data-driven artificial intelligence in optimization design for building structures: A review, Engineering Structures, 2025, 341: 120810. DOI: 10.1016/j.engstruct.2025.120810
Fei YF, Lu XZ, Liao WJ, Guan H, Data enhancement for generative AI design of shear wall structures incorporating structural optimization and diffusion models, Advances in Structural Engineering, 2025, DOI: 10.1177/13694332251353614

学术报告视频
论文和专利
---End--