声明:本分析不针对任何具体问题,仅仅是向各位读者汇报一下我们课题组在倒塌过程可视化模拟方法上取得的一些研究进展,不作为任何事件分析的基础和依据。
合理、真实的建筑倒塌废墟虚拟场景构建对灾害应急和救援训练至关重要。有限元方法模拟结构强非线性、超大变形倒塌过程计算成本高,且难以考虑块体碰撞。而基于物理引擎的倒塌模拟方法虽然具有结构倒塌的大变形模拟优势,但是在结构小变形阶段计算不准确。因此,我们提出了联合有限单元法与物理引擎的建筑倒塌及废墟场景模拟框架——在小变形阶段使用有限元程序模拟,在大变形阶段使用基于物理引擎的方法进行模拟,技术细节详见:(Hybrid framework for simulating building collapse and ruin scenarios using finite element method and physics engine. Applied Sciences, 2020, 10(12), 4408. http://doi.org/10.3390/app10124408)

图1 本研究提出的联合有限单元法与物理引擎的建筑倒塌及废墟场景模拟框架
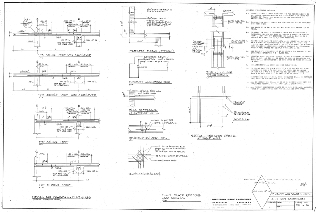
基于上述技术,我们首先调研了某12层公寓的设计图纸,采用图1的方法进行了建模和计算。关于一些构件和节点强度的详细计算内容,我们公众号后续会陆续发布。



图2 某12层公寓建筑图纸
由于本研究重点是倒塌过程的可视化模拟,所以我们对倒塌的起因进行简化处理,假定局部立柱破坏。进而可以得到其倒塌过程如动画所示。(现场视频来源:WSVN 7 News)

最终形成的模拟倒塌废墟与实际倒塌废墟的对比如图3所示。








(a) 实际废墟
(b) 模拟废墟
图3 模拟废墟与实际废墟的对比
再次强调,以上分析不针对任何具体问题,仅仅是向大家介绍一下我们课题组开发的倒塌过程可视化模拟方法。不作为任何事件分析的基础和依据。
注:部分图片和视频来源于网络,主要用于学术交流,如侵删。

郑哲

费一凡
---End---
相关研究
专著
人工智能与机器学习
城市灾害模拟与韧性城市
高性能结构与防倒塌
新论文:抗震&防连续倒塌:一种新型构造措施
长按识别二维码,关注我们的科研动态
